Théâtre de la Dame de Coeur

un projet qui réinterprète l’architecture rurale québécoise pour densifier le domaine du Théâtre de la Dame de Cœur et lui offrir des espaces contemporains à l’échelle de son site patrimonial.

Théâtre de la Dame de Coeur 1 / 17 informations

Projet
Théâtre de la Dame de Coeur
Année
2025
En collaboration avec
- COEX Atelier - Gestion de projet
- Latéral Conseil - Structure
- Pageau Morel - Électromécanique
- Vlan - Paysage
- Eurêka Environnement - Génie Civil
Crédits photographiques
- TARMAC - Damien Ligiardi

Installé depuis 44 ans au cœur du Québec, le Théâtre de la Dame de Cœur s’impose comme un centre majeur de recherche, de création, de production, de diffusion, de médiation culturelle et de formation. Grâce à ses installations d’accueil et à ses ateliers de production, il offre également des résidences à des artistes engagés dans des démarches novatrices autour de la marionnette et des arts visuels qui l’accompagnent.

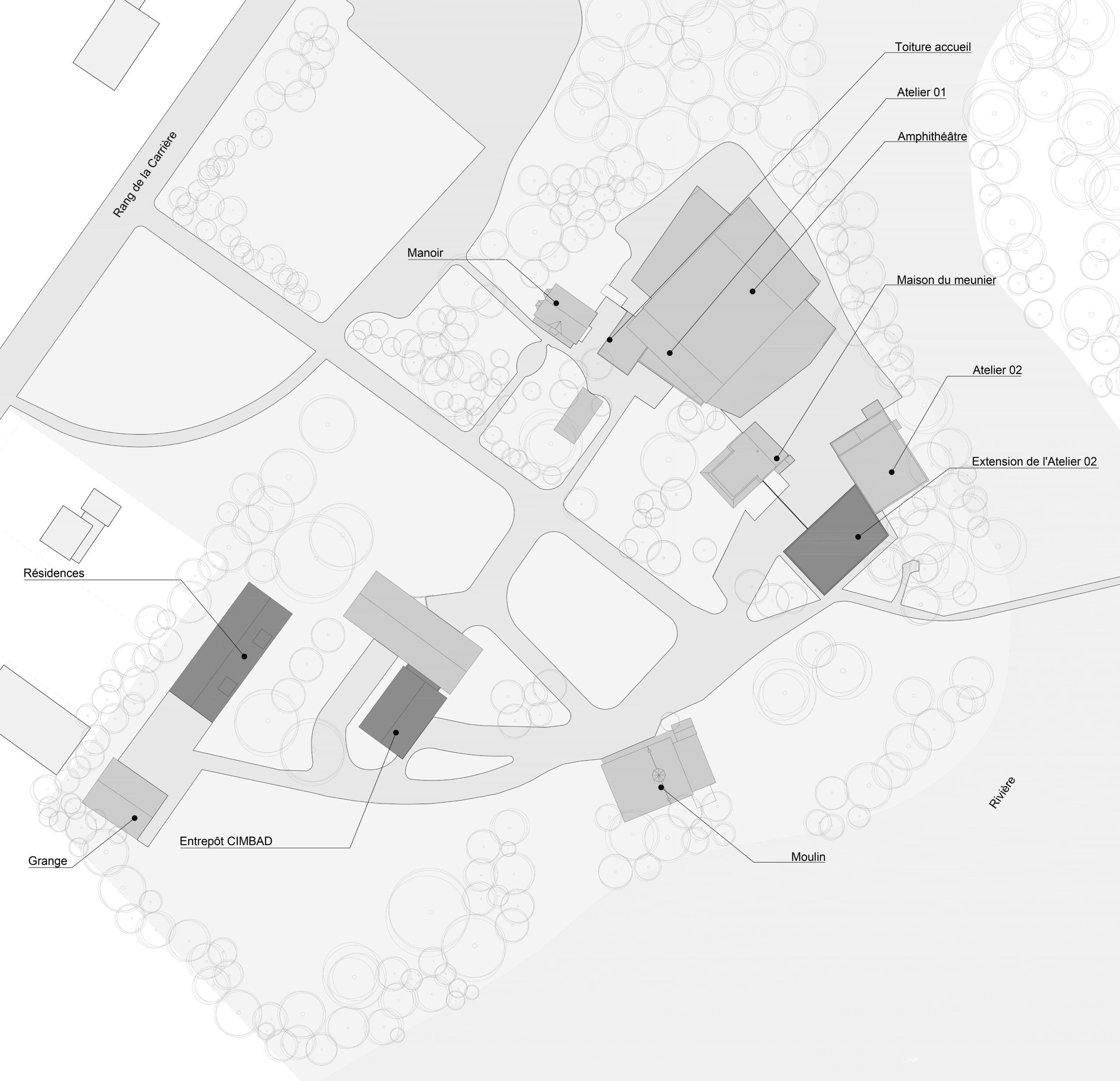
Situé sur le site original du village de Saint-Ephrem-d’Upton, occupé entre 1850 et 1920 avant d’être déplacé à son emplacement actuel avec l’arrivée du chemin de fer, le campus du Théâtre de la Dame de Cœur bénéficie d’un cachet historique remarquable. Il y a près de cinquante ans, alors que le domaine était à l’abandon et promis à la démolition, le Théâtre de la Dame de Cœur a relevé le pari audacieux de le réinvestir pour y faire vivre un univers culturel unique en milieu rural. Aujourd’hui encore, trois bâtiments emblématiques témoignent du riche passé du site : le Manoir, la Maison du Meunier et le Vieux Moulin.

Pour redonner vie à ce lieu patrimonial, le site a fait l’objet de cinq grandes phases de rénovation, dont la plus récente a été réalisée par in situ atelier d’architecture. Cette dernière intervention, d’envergure à l’échelle du domaine, a permis de repenser l’ensemble du site tout en y intégrant de nouvelles fonctions essentielles à la croissance et à la poursuite de la mission du Théâtre de la Dame de Cœur. En effet, les multiples rénovations menées au fil du temps dans différents secteurs avaient conduit à une organisation fragmentée : les divers bâtiments du Théâtre se déployaient de manière plutôt arbitraire, rendant l’ensemble moins fonctionnel et moins intuitif pour les usagers.

C’est pourquoi il apparaissait important de revoir la position de certains usages au sein du site afin d’améliorer le rendement de l’organisme et d’enrichir l’expérience des différents usagers. De plus, la définition d’une écriture architecturale forte pour l’ensemble du domaine a permis de rendre la lecture des lieux plus claire, de créer une identité propre au TDC et de rendre le site plus lisible et intuitif pour tous. Ce projet de mise à niveau des infrastructures s’inscrit dans une stratégie de consolidation et de mise en valeur du site patrimonial du Théâtre de la Dame de Cœur.

Les nouvelles infrastructures, une résidence pour artistes, l’agrandissement du Centre d’interprétation des Marionnettes Baroques Alphonse-Desjardins (CIMBAD) et l’extension de l’atelier de production, répondent à la croissance des besoins fonctionnels du TDC et renforcent l’écriture architecturale de l’ensemble du site, témoins des grands domaines de production et de transformation de produits agricoles de l’époque. Les nouvelles fonctions sont rassemblées dans de grandes constructions, évoquant les bâtiments agricoles. Ceci permet de minimiser les interventions sur le site ainsi que d’uniformiser la typologie des interventions et de maintenir une échelle appropriée à l’architecture typique de ces ensembles.

Les interventions s’articulent autour de différents secteurs d’activités et sont consolidés selon leur fonction : secteur administratif et d’accueil du public, secteur de production (comprenant l’extension de l’atelier de production), secteur de la restauration (Vieux-Moulin), secteur d’interprétation, de résidences et d’entreposage (comprenant les nouvelles résidences et l’extension du CIMBAD). Le secteur de la production est constitué de constructions à toits plats en continuité avec la Maison du Meunier. Tandis que le secteur des résidences / entrepôt / interprétation est constitué de grandes constructions à toits à versants typiques des domaines agricoles du centre du Québec en continuité avec le CIMBAD et le vieux Moulin. L’ensemble des interventions est uniformisé par le traitement des surfaces : une peinture blanche opaque sur un revêtement en bois à pose horizontale pour les bâtiments traditionnels, dont les détails sont surhaussés d’encadrement vert, typique des traitements de l’époque; un revêtement en bois teinte cèdre naturel posé à la verticale pour les constructions contemporaines.

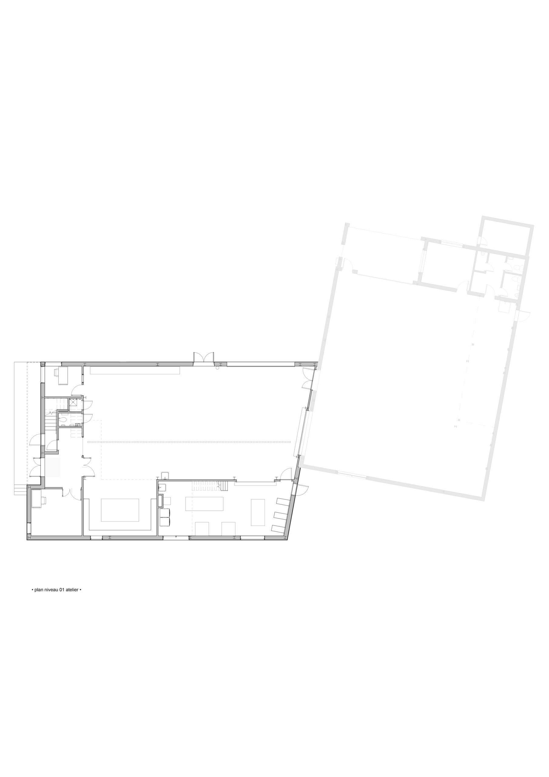
Le secteur de production
L’avant-corps de l’extension de l’atelier de production s’implante en alignement avec la Maison du meunier et renforce ainsi le cadre bâti. Un accès véhiculaire s’implante discrètement entre les deux et contrôle l’accès à l’aire de production à l’arrière.

Le secteur des résidences / entrepôt / interprétation
L’extension du CIMBAD s’implante à l’arrière du bâtiment existant et établit un dialogue avec les nouvelles résidences pour artistes. Ensemble, ils forment une cour intérieure privative, rappelant les typologies des anciens domaines agricoles. L’implantation de l’extension de l’entrepôt permet de délimiter un espace privé vis-à-vis du reste du site accessible au public, qui est réservé aux artistes en résidence. Cette intervention contribue également à requalifier l’accès au sous-sol du CIMBAD, jusque-là peu fonctionnel.
Les volumes des résidences et de l’entrepôt adoptent le langage des grands corps de ferme à toiture à deux versants, en écho au patrimoine rural du site. Les appartements, répartis sur deux niveaux, s’ouvrent largement sur la cour centrale orientée vers la rivière, tandis que leurs accès, dissimulés à l’arrière dans un boisé, préservent la tranquillité et l’intimité des occupants.

Retour à la liste des projets